مخطط معماري
في مجال الهندسة المعمارية يعتبر المخطط المعماري مخطط تصميم و أيضاً في ذات الوقت مخطط تنفيذ لأي بناء، ويمكن أن يحتوي على رسومات معمارية، مواصفات للتصاميم، حسابات للتصاميم، الجدول الزمني أللازم لإنشاء المبنى، وأي مخططات أو ملفات إضافية.
مصطلح "المخطط المعماري"
"المخطط المعماري" يتعدد في معانيه منها:
- مخطط لمشروع معماري.
- وثيقة ذات وصف خطي أو صور توضيحية تصف العناصر المعمارية لمبنى وتتضمن أيضاً أي مسودة، رسومات أو تفاصيل توضيحية. و تتواجد هذه الوثائق في مختلف التصاميم والمباني أن كانت جديدة أو غير جديدة ومراد ترميمها مثل ألمباني ألاثرية.
- تصميمات معمارية.
- مخطط الطابق.
- مقياس ألرسم للمبنى.
هذه المقالة سوف تركز على المعنى العام للمخططات المعمارية من حيث الرسومات والوثائق المطلوبه لتفيذ ألمشروع.
أنواع المخططات المعمارية
المباني
المبنى هو منشأة من صنع الانسان تتكون من سقف وجدران. تأتي المباني في تنوع كبير من حيث الشكل والحجم و الوظيفة، وقد تم تبني هذه المنشآت خلال التاريخ لعدد كبير من العوامل، من اختلاف مواد البناء، حالات الطقس، اسعار الاراضي، حالت التربة والبنية التحتية وايضاً حسب استخدامات وظيفية وجمالية محددة.
الصور في ألاسفل توضح أنواع مختلفة من المباني.












مبنى ديني


عادة ما تكون ممارسة تصميم وبناء وتشغيل المباني جهدًا جماعيًا لمجموعات مختلفة من المهنيين والحرفيين. اعتمادا على الحجم والتعقيد والغرض من المشروع.
منهجية التصميم
قد تتضمن عملية التصميم سلسلة من الخطوات يتبعها المصممون. اعتمادا على المنتج أو الخدمة، قد تكون بعض هذه المراحل غير ذات صلة، يتم تجاهلها في مواقف العالم الحقيقي من أجل توفير الوقت، وخفض التكلفة، أو لأنها قد تكون زائدة عن الحاجة في هذه الحالة. تتضمن المراحل النموذجية لعملية التصميم ما يلي:
- تصميم ما قبل الإنتاج.
- ملخص للتصميم – صيغه واضحة لاهداف التصميم.
- تحليل – تحليل شامل لاهداف التصميم.
- بحث – دراست تصاميم مشابها.
- مواصفات – وصف المتطلبات اللازمة لتفيذ الحلول التصميمية.
- حل المشكلة - تصور وتوثيق حلول التصميم.
- العرض - تقديم حلول التصميم.
- تصميم أثناء الإنتاج.
- تغذية راجعة للتصاميم بعد الإنتاج للتصاميم المستقبلية.
- إعادة التصميم - تتكرر أي أو كل مراحل عملية التصميم (مع إجراء التصحيحات) في أي وقت قبل أو أثناء أو بعد الإنتاج.
الرسومات المعمارية
يتم استخدام الرسومات المعمارية من قبل المهندسين المعماريين وغيرهم لعدد من الأغراض: تطوير فكرة تصميم لمقترح متماسك، لتوصيل الأفكار والمفاهيم، لإقناع العملاء بمزايا التصميم، لتمكين مقاول البناء من بنائه، سجل العمل المنجز، ولإعداد سجل لمبنى موجود بالفعل.
تصنع الرسومات المعمارية وفقًا لمجموعة من المواثيق، والتي تشمل وجهات نظر معينة (مخطط الطابق، القسم، إلخ) ، أحجام الاوراق، وحدات القياس والمقاييس، التعليق التوضيحي والإشارات المرجعية. تقليديا، كانت الرسومات مصنوعة في ورقة أو مادة مماثلة، وكان لا بد من إجراء أي نسخ مطلوبة عن عمد. شهد القرن العشرون تحولا في الرسم على ورق التتبع، بحيث يمكن تشغيل الطابعة لنسخ وطباعة عدد معين من الاوراق.
قيم التصميم المعماري
تشكل قيم التصميم المعماري جزءًا هامًا مما يؤثر على المهندسين المعماريين والمصممين عندما يتخذون قرارات التصميم الخاصة بهم. ومع ذلك، لا يتأثر المعماريون والمصممين بنفس القيم والنوايا. تختلف القيمة والنوايا بين الحركات المعمارية المختلفة. كما يختلف أيضًا بين مدارس العمارة المختلفة ومدارس التصميم وبين المهندسين المعماريين والمصممين.
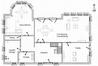
مخطط الطابق
واحدة من الأدوات الرئيسية في التصميم المعماري هو مخطط الطابق. يوضح هذا الرسم البياني العلاقات بين الغرف والمساحات والميزات المادية الأخرى على مستوى واحد من البنية. عادة ما يتم رسم الأبعاد بين الجدران وطول الجدار. تتضمن مخططات الطوابق أيضًا تفاصيل التركيبات مثل المصارف، وسخانات المياه، والأفران، إلخ. ستشتمل مخططات الطوابق على ملاحظات لتحديد التشطيبات أو طرق البناء أو الرموز للأدوات الكهربائية.
التخطيط
المخطط هي عادة أي إجراء يستخدم لتحقيق هدف ما. إنها مجموعة من الإجراءات المقصودة، والتي يتوقع المرء من خلالها تحقيق هدف. يمكن أن تكون المخططات رسمية أو غير رسمية:
- المخططات الهيكلية والرسمية، والدبلوماسية، والوظائف، والتنمية الاقتصادية، والحملات العسكرية، والقتال، أو في إدارة أعمال أخرى.
تشييد المباني
هي عملية التحضير وبناء المباني [2] وأنظمة البناء.[3] يبدأ البناء بالتخطيط والتصميم والتمويل ويستمر حتى يصبح الهيكل جاهزًا للإشغال. فإن البناء على نطاق واسع يعد إنجازًا متعدد المهام. عادة، يتم إدارة الوظيفة من قبل مدير المشروع، ويشرف عليها مدير البناء ، مهندس التصميم، مهندس البناء أو مهندس المشروع. للتنفيذ الناجح للمشروع، يعد التخطيط الفعال أمرًا ضروريًا.
أنواع ذات صلة من التصميم
تصميم الحدائق
تصميم الحديقة هو فن وعملية تصميم وخلق خطط للتخطيط وزراعة الحدائق والمناظر الطبيعية. قد يتم تصميم الحديقة من قبل مالك الحديقة نفسه، أو من قبل خبراء من مستويات مختلفة من الخبرة. يتم تدريب معظم مصممي الحدائق المحترفين على التصميم والبستنة ، ولديهم معرفة وخبرة باستخدام النباتات. بعض مصممي الحدائق المحترفين هم أيضا مهندسو المناظر الطبيعية ، وغالبا ما يكونون. يتمتع العديد من أصحاب الحدائق الهواة أيضًا بمستوى عالٍ من الخبرة في حدائقهم الخاصة، وذلك من خلال برامج Master Gardener التي تقدمها جمعية البستنة الأمريكية.
تصميم المناظر الطبيعية
تخطيط المناظر الطبيعية هو فرع من هندسة المناظر الطبيعية. أنظمة الحدائق الحضرية والطرق الخضراء من النوع المخطط من قبل فريدريك لو. مصممو المناظر الطبيعية تميل إلى العمل للعملاء الذين يرغبون في التكليف بأعمال البناء. يمكن لمخططي المناظر الطبيعية أن ينظروا إلى ما وراء "الحدود الفنية المرسومة عن كثب" و "الحدود الإقليمية الضيقة" التي تقيد مشاريع التصميم.

مخططي المناظر الطبيعية يميلون إلى العمل في المشاريع التي تتضمن ما يلي:
- ذات نطاق جغرافي واسع.
- قلق العديد من استخدامات الأراضي أو العديد من العملاء.
- يتم تنفيذها على مدى فترة طويلة من الزمن.
في المناطق الريفية، كان الضرر الناجم عن استخراج المعادن غير المخطط له أحد الأسباب الأولية للطلب العام على تخطيط المناظر الطبيعية.
تخطيط الموقع
مخطط الموقع هو مخطط معماري، ورسم هندسي تفصيلي للتحسينات المقترحة في مجموعة معينة. عادة ما يعرض يعرض مخطط الموقع بمنظور علوي، وممرات، ومواقف للسيارات، ومرافق الصرف الصحي، وخطوط الصرف الصحي، وخطوط المياه، والمسارات، والإضاءة، والمناظر الطبيعية.
مثل هذا المخطط هو تمثيل بياني لترتيب المباني، ومواقف السيارات، ومحركات الأقراص، والمناظر الطبيعية وأي هيكل آخر يشكل جزءًا من مشروع تطوير.
مخطط الموقع هي مجموعة من الرسومات الإنشائية التي يستخدمها مُنشئ أو مقاول لإجراء تحسينات على خاصية ما. يمكن للمقاطعات استخدام الموقع للتحقق من أن رموز التطوير هي مورد تاريخي. يتم إعداد خطط الموقع عادة من قبل استشاري تصميم يجب أن يكون مهندسًا مرخصًا أو مهندسًا معماريًا أو مهندسًا للمناظر الطبيعية أو مسحًا للأراضي.
تخطيط النقل
تخطيط النقل هو المجال الذي ينطوي عليه تحديد مواقع مرافق النقل (عادةً الشوارع والطرق السريعة والأرصفة وممرات الدراجات وخطوط النقل العام).
وقد اتبع تخطيط النقل تاريخيا تخطيط تحديد الأهداف والغايات، وتحديد المشاكل، وتوليد البدائل، وتقييم البدائل، وتطوير الخطة. وتشمل النماذج الأخرى للتخطيط، الفاعل العقلاني، والرضا، والتخطيط التدريجي ، والعملية التنظيمية، والمساومة السياسية. ومع ذلك، فمن المرجح أن يعتمد المخططون منهجًا متعدد التخصصات، لا سيما بسبب تزايد أهمية البيئة. على سبيل المثال، استخدام علم النفس السلوكي لإقناع السائقين بالتخلي عن سياراتهم واستخدام وسائل النقل العام بدلاً منها. يتحول دور مخطط النقل من التحليل الفني إلى الاستدامة من خلال سياسات النقل المتكاملة.[4]
التخطيط الحضري
التخطيط الحضري، والمدينة هو تكامل لتخطيط استخدام الأراضي وتخطيط النقل، لاستكشاف مجموعة واسعة من جوانب البيئة المبنية والبيئات الحضرية. مستوى تفصيلي أكبر.
ويتمثل أحد الأدوار الرئيسية الأخرى للتخطيط الحضري في التجديد الحضري وإعادة توليد المدن الداخلية عن طريق تكييف طرق التخطيط الحضري مع المدن القائمة التي تعاني من تدهور البنية التحتية على المدى الطوي.
الصورة أدناه هي بنية تشاندلر، من الألف إلى الياء.[5]
المراجع
- Holm, Ivar (2006). Ideas and Beliefs in Architecture and Industrial design: How attitudes, orientations, and underlying assumptions shape the built environment. Oslo School of Architecture and Design. (ردمك 82-547-0174-1)."Archived copy" (PDF). مؤرشف من الأصل (PDF) في 24 يوليو 2011. اطلع عليه بتاريخ 20 مايو 2010. الوسيط
|CitationClass=تم تجاهله (مساعدة)صيانة CS1: الأرشيف كعنوان (link) - Sturgis, Russell. "Construction def. B. and "Building" def. A. Sturgis' illustrated dictionary of architecture and building: an unabridged reprint of the 1901-2 edition. Mineola, N.Y.: Dover, 1989. Print.
- Davies, Nikolas, and Erkki Jokiniemi. "Construction" def. 1-5. Dictionary of architecture and building construction. Amsterdam: Elsevier/Architectural Press, 2008. 93. Print.
- Southern, A. (2006), Modern-day transport planners need to be both technically proficient and politically astute, Local Transport Today, no. 448, 27 July 2006.
- Grogan, Paul, Proscio, Tony, Comeback Cities: A Blueprint for Urban Neighborhood Revival, 2000. (ردمك 0-8133-3952-9)
- بوابة عمارة

