مرجل
المرجل[1][2] (الجمع: مَرَاجِل) ويسمى أيضًا الغلاية[3] هو وعاء ضغط مصمم لتحويل سائل إلى بخار (تبخيره) بواسطة نقل الحرارة؛ و أحيانا كثيرة يكون هذا البخار بخار ماء ذو ضغط ودرجة حرارة مرتفعان، يستفاد منها بتحريك محرك بخاري. أبسط أنواع الغلايات هو الأنبيق.


.jpg.webp)

التاريخ
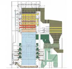
- المرجل في بداية ظهوره كان عبارة عن وعاء ممتلئ بالمياه يتم تسخينه من الأسفل فتتحول المياه التي بداخله إلى بخار. وهذا الوعاء يرقد على حائط من الطوب (الطابوق) الحراري ومع مرور الوقت وجد أن هذه الطريقة غير عملية لإنتاج البخار بكميات كبيرة في زمن مناسب بمواصفات معية حيث أصبحت الحاجة ملحة لإنتاج البخار بمواصفات محددة من حيث الكمية والضغط والحرارة الأمر الذي يحتاج إلى عمليات تسخين أكثر، أي زيادة أسطح الأنتقال الحراري للمياه فاتجه التفكير إلى تمرير غازات الاحتراق الساخنة داخل أنابيب والمياه تكون حولها وبذلك تتعرض كميات كبيرة من المياه للحرارة وجعل البخار داخل المرجل منتظم وهذا التصميم أطلق عليه المرجل ذو الأنابيب اللهبية.
- ظهر بعد ذلك المرجل ذو الأنابيب المائية وفيه تدخل المياه إلى اسطوانة متصل بها أنابيب، تتحول المياه بداخلها إلى بخار بواسطة غازات الاحتراق التي تمر حول أنابيب المياه وانتقال الحرارة يتم من الغازات ثم إلى جسم الأنبوب ثم إلى المياه، وهذا النوع من المراجل ينتج كميات كبيرة من البخار بضغط عالي ودرجة حرارة مرتفعة.
التطبيقات المختلفة
تستخدم الغلايات لإنتاج البخار لأغراض توليد الطاقة، وهو الوضع الغالب في أغلب محطات القوى التي تولد الطاقة الكهربية.
كما يمكن استخدام البخار الناتج من الغلاية في أغراض تحلية المياه والتدفئة وبعض الأغراض الصناعية المختلفة.
أنواع الغلايات
الوقود المستخدم
يستخدم في الغلايات جميع أنواع الوقود كمصدر للحرارة لتوليد البخار، بدءا من الفحم والخشب والوقود النفطي والغاز الطبيعي وصولا إلى الانشطار النووي.
غلاية بخار محمص

تنتج معظم الغلايات البخار عند درجة حرارة التشبع ويسمى بالبخار المشبع. تنتج غلايات البخار المحمص بخار الماء عند درجة التشيع ولكنه يدخل بعد ذلك إلى المحمص الذي ينتج البخار عند درجة حرارة أعلى من التشبع ولكن هذا يؤدي إلى انخفاض الكفاءة الحرارية الكلية لمحطة إنتاج البخار وذلك بسبب ان البخار ذو درجة الحرارة العالية يتطلب خروج غازات العادم عند درجة حرارة عالية.[بحاجة لمصدر] من الممكن أن نتحايل على هذا باستخدام المقتصد والذي يسخن ماء التغذية بواسطة غازات العادم. كذلك يتم تخسين الهواء بواسطة تلك الغازات. هناك عدة مزايا لتسخين البخار وتحويله إلى بخار محمص مثل أنه يساعد على زيادة كفاءة إنتاج البخار. هذا يساعد على عدم زيادة التكلفة في الغلاية لتحويل البخار إلى بخار محمص. بجانب هذا فإن البخار المحمص يقلل من احتمالية دخول قطرات من الماء إلى العنفة وتدمير ريشها.
لا بد من وجود وسائل أمان كثيرة في حالة البخار المحمص حيث انه إذا حدث أى خلل لأي مكون فإن البخار يتسرب. هذا الضغط العالي ودرجة الحرارة المرتفعة له يتسببان في إلحاق الأذى بالأشخاص. كي نتعرف على تسرب البخار فإن الصوت الناتج عن التسريب سيكون واضح وهو ما يرشدنا إلى أن هناك تسرب للبخار المحمص.
يمكننا أن نقول أن وظيفة المحمص تشبه وظيفة الملفات الموجودة بمكيف الهواء مع اختلاف الغرض. تتجه انابيب البخار في مسار غازات العادم حيث تكون درجة الحرارة في هذه المنطقة بين 1300 و 1600 درجة سليزيوس. بعض المحمصات تكون إشعاعية حيث تتبادل الحرارة عن طريق الإشعاع بينما هناك أنواع أخرى تتم عملية التبادل بينها عن طريق الحمل. هناك محمصات تجمع بين النوعين. بينما درجة حرارة البخار تزيد فإن الضغط يظل ثابت ويظل ضغطه مساويا للضغط الخارج منه من المرجل.[4]
مولد البخار فوق الحرج

تستخدم مولدات البخار المحمص في محطات توليد الكهرباء التي تعمل عند ضغط محمص. تعمل هذه المحمصات عند ضغوط عالية تصل إلى 22 ميجا باسكال وعندها تتوقف الاضطرابات التي تحدث والمصاحبة لعملية الغليان حيث أننا نتعامل مع مائع محمص وليس غاز أو سائل. في هذه الحالة ليس هناك تكون لفقاعات البخار في الماء حيث أننا عند ضغط أكبر من الضغط الحرج وبالتالي يتحول الماء إلى بخار مباشرة. عند حدوث التمدد داخل العنفة فإن خواص المائع تتغير حيث أننا في هذه المرحلة نكون عند ضغط أقل من الضغط الحرج وذلك لتشغيل ريش العنفة التي بدورها تنقل هذه الطاقة إلى المولد لإنتاج الكهرباء. عند هذه المرحلة نجد أن هناك خليط من قطرات الماء والبخار قبل الدخول إلى المكثف.
المغلاة

المغلاة (الجمع: مغالي) عبارة عن مكان للغلي، مثلما أن المخبز وهو مكان الخبز. ويمكن أيضًا أن يقصد بهذا المصطلح عملية الغليان نفسها أو المعدات المستخدمة للغلي. وقد عرفت أيضًا بغرف الغليان. وعلى الرغم من اقتصارها الآن على المصانع بوجه عام، وعلى المنتجات الصناعية التي تتعرض للغليان أكثر من الأطعمة، إلا أنه قد شاع استخدامها قديمًا في الحياة اليومية. والمغلاوات مخصصة بالأساس لغلي كميات كبيرة من السوائل.[5]
استخدمت المغلاة في القرن السابع عشر وحتى القرن التاسع عشر لتحويل عصير قصب السكر إلى سكر خام. كانت هذه المغلاة عادة أماكن متينة مبنية من الحجارة ومحتوية على عدة أباريق نحاسية يوجد أسفل كل منها فرن.,[6] كان يعالج عصير قصب السكر بالليمون في أوانٍ كبيرة للتصفية قبل تسخينها في الأباريق النحاسية فوق أفران متفردة. ونظرًا لأهمية المغلاة، احتفظت كثير من مزارع قصب السكر الغربية بها في مواقع العمل.[7]
كان يصنع الصابون أيضًا في غرف الغليان.
كان تصنيع الملح من خلال تبخير الماء الأجاج أحد الاستخدامات الأخرى للمغلاة.,[8][9]
ذكرت المغلاوات في الكتاب المقدس[بحاجة لمصدر] .
مراجع
- معنى مرجل، المعجم الوسيط.
- الهيئة الذرية السورية نسخة محفوظة 08 مايو 2017 على موقع واي باك مشين. [وصلة مكسورة]
- فتح الباري شرح صحيح البخاري - «وقيل كل إناء يغلي فيه الماء» نسخة محفوظة 04 يوليو 2017 على موقع واي باك مشين.
- Bell, A.M. (1952) Locomotives 1 p 46. Virtue and Company Ltd, London
- What Is a Boilery? نسخة محفوظة 23 أغسطس 2017 على موقع واي باك مشين.
- Photo of Beamish Colliery Boiler House نسخة محفوظة 20 ديسمبر 2016 على موقع واي باك مشين.
- | Define at Dictionary.com نسخة محفوظة 02 مارس 2009 على موقع واي باك مشين.
- Saltworks Boilery in Slovakia نسخة محفوظة 14 أغسطس 2017 على موقع واي باك مشين.
- 1828-dictionary.com نسخة محفوظة 01 نوفمبر 2011 على موقع واي باك مشين.
- بوابة هندسة تطبيقية
- بوابة طاقة